Objektart
Adresse
Objektdaten
Informationen
Ausstattung
Details
Es muss nicht immer Hamburg sein!
Exklusive Bürofläche in modernem Neubau (Baujahr 2023) - repräsentativ, nachhaltig und vielseitig nutzbar
Zur Vermietung steht ein hochwertiges, architektonisch ansprechendes Bürogebäude aus dem Jahr 2023 mit einer Gesamtfläche von ca. 550 m², verteilt auf vier Ebenen. Die Immobilie überzeugt durch ihre moderne Bauweise, durchdachte Raumaufteilung und eine helle, freundliche Arbeitsatmosphäre - ideal für anspruchsvolle Unternehmen verschiedenster Branchen.
Highlights im Überblick:
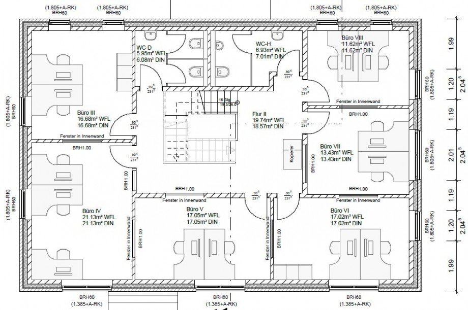
Ca. 550 m² Gesamtfläche auf vier Etagen
Rund 14 großzügige Büros sowie ein repräsentativer Konferenzraum
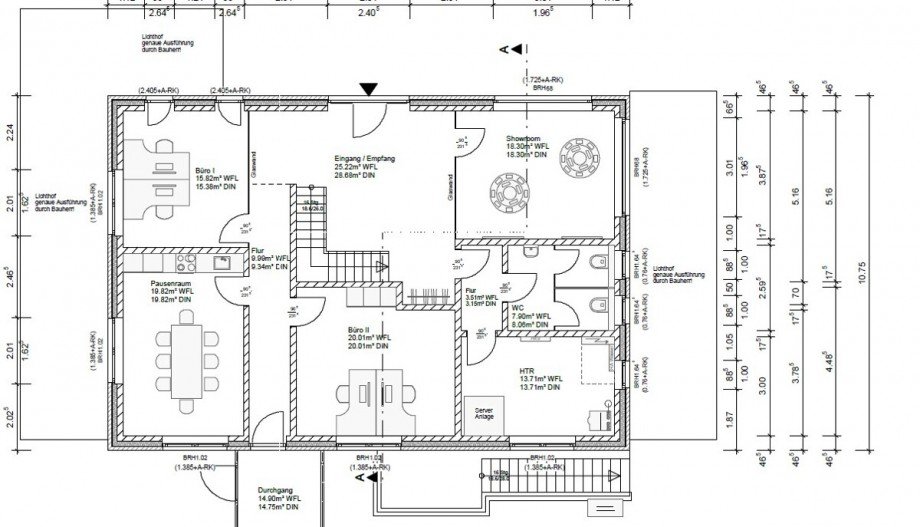
Helles Souterrain mit zusätzlichem Nebeneingang mit vielseitigen Nutzungsmöglichkeiten
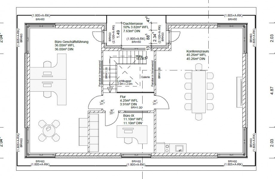
Dachterrasse mit attraktiver Aufenthaltsqualität
Hochwertige, nachhaltige Bauweise mit Solaranlage
Klimatisierter Serverraum und moderne Netzwerkinfrastruktur
Elektrische Rollläden / Raffstores in allen Räumen
Zeitgemäße Architektur mit stilvoller Klinker- und Putzfassade
Perspektivische Erweiterungsmöglichkeiten durch angrenzende Logistikhalle
Objektbeschreibung:
Dieses moderne Bürogebäude bietet ideale Voraussetzungen für effizientes Arbeiten in einem repräsentativen Umfeld. Die großzügigen Fensterflächen sowie die durchdachte Architektur sorgen in allen Etagen für eine außergewöhnlich helle und angenehme Atmosphäre.
Besonders hervorzuheben ist das Souterrain, welches dank großer Ausschachtungen ebenfalls lichtdurchflutet ist. Mit einem zusätzlichen eigenen Eingang ausgestattet, eignet sich diese Ebene hervorragend zur separaten Nutzung oder Untervermietung - beispielsweise für eigenständige Geschäftsbereiche, Praxen oder Dienstleister.
Die Büroflächen verteilen sich auf insgesamt zwei Vollgeschosse sowie ein Staffelgeschoss + Souterrain und bieten flexible Nutzungsmöglichkeiten - von klassischen Einzelbüros bis hin zu Besprechungs- und Konferenzräumen. Die Dachterrasse schafft zusätzlichen Raum für Pausen, informelle Meetings oder Firmenevents.
Das Gebäude wurde nachhaltig errichtet und entspricht modernen energetischen Standards. Eine Photovoltaikanlage sowie hochwertige technische Ausstattung unterstreichen den zukunftsorientierten Charakter der Immobilie.
Entwicklungspotenzial:
Ein weiterer Pluspunkt ist die angrenzende Logistikhalle, die perspektivisch in ca. 3-5 Jahren zusätzlich genutzt werden kann. Hier besteht zudem die Möglichkeit, einen separaten Zugang zu schaffen und die Nutzfläche entsprechend zu erweitern. Hier würden auch weitere Büros zur Verfügung stehen.
Die Immobilie eignet sich hervorragend für:
Unternehmenszentralen oder wachsende Firmen
Kanzleien (Rechtsanwälte, Steuerberater)
Arztpraxen oder medizinische Dienstleister
Agenturen, Beratungsunternehmen oder IT-Firmen
Sonstiges:
Die Vermietung erfolgt aufgrund der Expansion des aktuellen Eigentümers, der aktuell ein größeres Betriebsgebäude errichtet.
Fazit:
Eine moderne, vielseitige und repräsentative Büroimmobilie mit exzellentem Entwicklungspotenzial - ideal für Unternehmen, die Wert auf Qualität, Nachhaltigkeit und ein attraktives Arbeitsumfeld legen.
Baujahr 2023 - moderner, hochwertiger Neubau
Ca. 550 m² Gesamtfläche auf vier Ebenen
14 Büros + 1 großzügiger Konferenzraum mit Design-Küche
Helle, lichtdurchflutete Räume durch große Fensterflächen
Souterrain mit großen Ausschachtungen und eigenem separaten Eingang
Dachterrasse zur Nutzung für Pausen oder Meetings
Nachhaltige Bauweise inkl. Solaranlage
Klimatisierter Serverraum
Große Terrasse im EG
Moderne Netzwerk- und IT-Infrastruktur
Elektrische Rollläden / Raffstores in allen Räumen
Hochwertige Fassadengestaltung (Klinker & Putz)
Zwei Vollgeschosse + Staffelgeschoss + Souterrain
Erweiterungspotenzial durch angrenzende Logistikhalle (perspektivisch nutzbar)
Möglichkeit zur separaten Nutzung einzelner Bereiche (z. B. Souterrain)
Die Immobilie befindet sich in einem etablierten Gewerbegebiet in Quickborn-Heide und überzeugt durch ihre hervorragende verkehrstechnische Anbindung sowie die attraktive Lage im wirtschaftsstarken Norden der Metropolregion Hamburg. In ca. 25 Minuten ist man mit dem Auto in der Hamburger Innenstadt.
Die Auffahrt zur Autobahn A7 ist in nur ca. 3 Fahrminuten erreichbar und gewährleistet eine optimale Anbindung in Richtung Hamburg, Flensburg sowie Kiel. Dadurch ist der Standort sowohl für den Individualverkehr als auch für Logistik- und Lieferverkehre äußerst effizient erschlossen.
Quickborn-Heide hat sich als gefragter Gewerbestandort etabliert und bietet ein professionelles Umfeld mit zahlreichen Unternehmen unterschiedlicher Branchen. Die Nähe zur Hansestadt Hamburg macht den Standort besonders attraktiv für Firmen, die von der wirtschaftlichen Dynamik der Metropolregion profitieren möchten, gleichzeitig jedoch Wert auf eine entspannte, weniger verdichtete Umgebung legen.
In der näheren Umgebung befinden sich diverse Einkaufsmöglichkeiten, Gastronomiebetriebe sowie Dienstleister, die eine komfortable Nahversorgung für Mitarbeiter und Kunden sicherstellen. Zudem ist die Anbindung an den öffentlichen Nahverkehr gegeben, sodass der Standort auch für Pendler gut erreichbar ist.
Insgesamt bietet die Lage eine ideale Kombination aus hervorragender Erreichbarkeit, wirtschaftlicher Stärke und angenehmem Arbeitsumfeld - ein entscheidender Vorteil für Unternehmen, die Wert auf Effizienz und Standortqualität legen.
Da aus dem eigenen Bestand vermietet wird fällt keine Provision an.
Ansprechpartner
Telefax: 004932123577750
Mobil: 00491631728333
dg@goerz-immobilien.de
Energieausweis (Bedarfsausweis)
47 kWh / (m²*a) Endenergiebedarf
47 kWh / (m²*a) Endenergiebedarf
47 kWh / (m²*a) Endenergiebedarf
47 kWh / (m²*a) Endenergiebedarf
47 kWh / (m²*a) Endenergiebedarf Weitere Informationen
| Wesentlicher Energieträger | Luft-/Wasser-Wärmepumpe |
| Energieausweis gültig bis | 2033-11-27 |
| Energieausweis Jahrgang | ab dem 1.5.2014 |
| Energieausweis Werteklasse | A |
| Energieausweis Baujahr | 2023 |
| Energieausweis Gebäudeart | Wohngebäude |
Ich bin damit einverstanden, dass mir Karten von Google angezeigt werden. Es gelten die Datenschutzbedingungen von Google (https://policies.google.com/privacy).
Ich bin einverstanden
